Jamie Sneddon Film - Gallery Pages

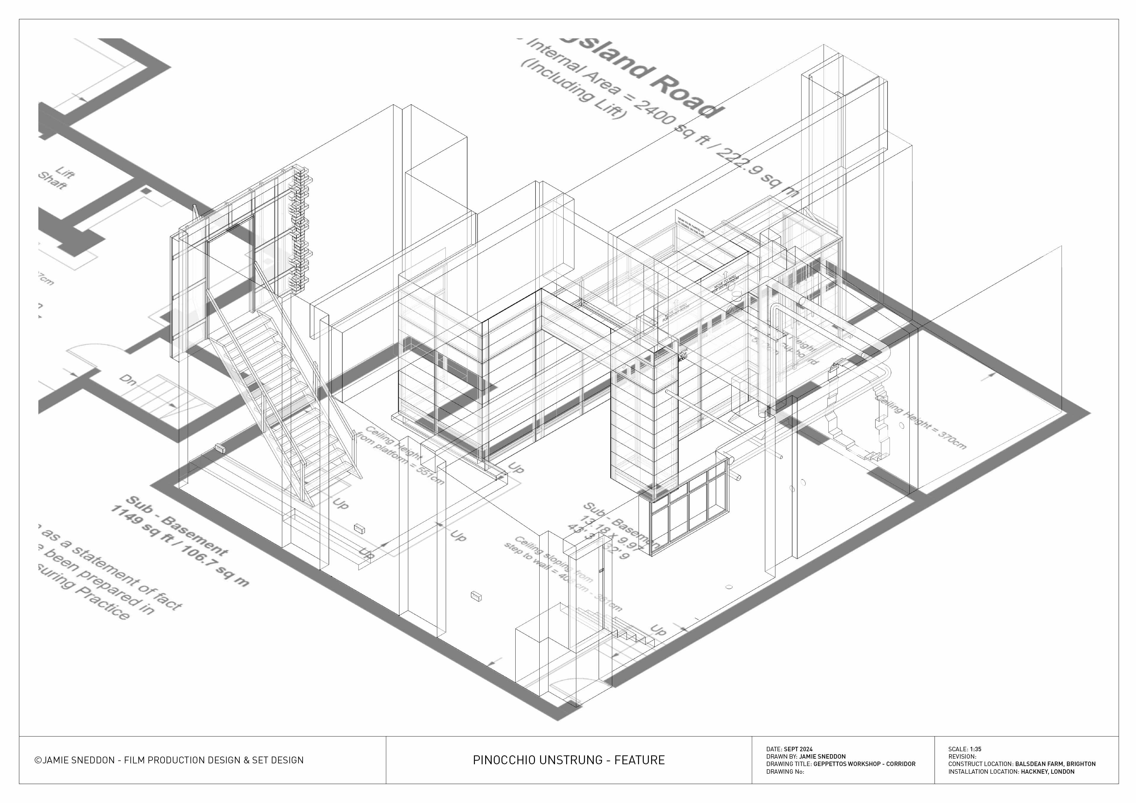
Set Design: Plan Drawing & Concept Art / Build & Install


Pre-Production: Goodtime Charlie


Movie Stills & Screens: Goodtime Charlie


Production Photographs: Goodtime Charlie


Pre-Productio & Production: Other Feature Films


Timelapse & Production Videos

Jamie recorded a remarkable time-lapse video of the entire 3 year Lancaster Bomber build! This is just a tiny part of it, more will follow on his YouTube channel (linked below).


A timelapse and walkthrough video of Jamie's Tetralogue movie train compartment and corridor set-build from November 2025.



Thanks for visiting!

Give Jamie a quick ping.. 🏓Even if it's just to say hello! We all need feedback..Use this contact form, or WhatsApp / Email etc using the icon links below👇.You can also download his CV, access his Instagram, LinkedIn, IMDb, & Facebook pages, or view his YouTube channel and illustration portfolio, even shop at his Big Cartel e-store by using the icons below.. 🙏

External Media & Links

Website designed, built and maintained by Jamie Sneddon. © Jamie Sneddon — All Rights Reserved. All images, logos, designs, video materials, and written content featured on this website are the exclusive property of Jamie Sneddon. You’re welcome to share links, but please do not reproduce, modify, or distribute any other content without prior written permission from the copyright holder. This website is intended for informational and promotional purposes only. All of Jamie Sneddon's work and related materials are protected by copyright and intellectual property laws.